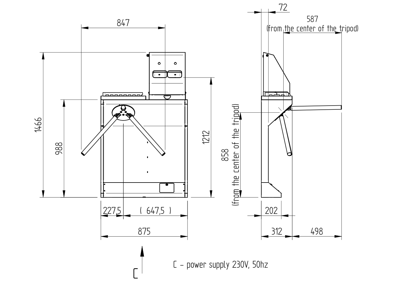
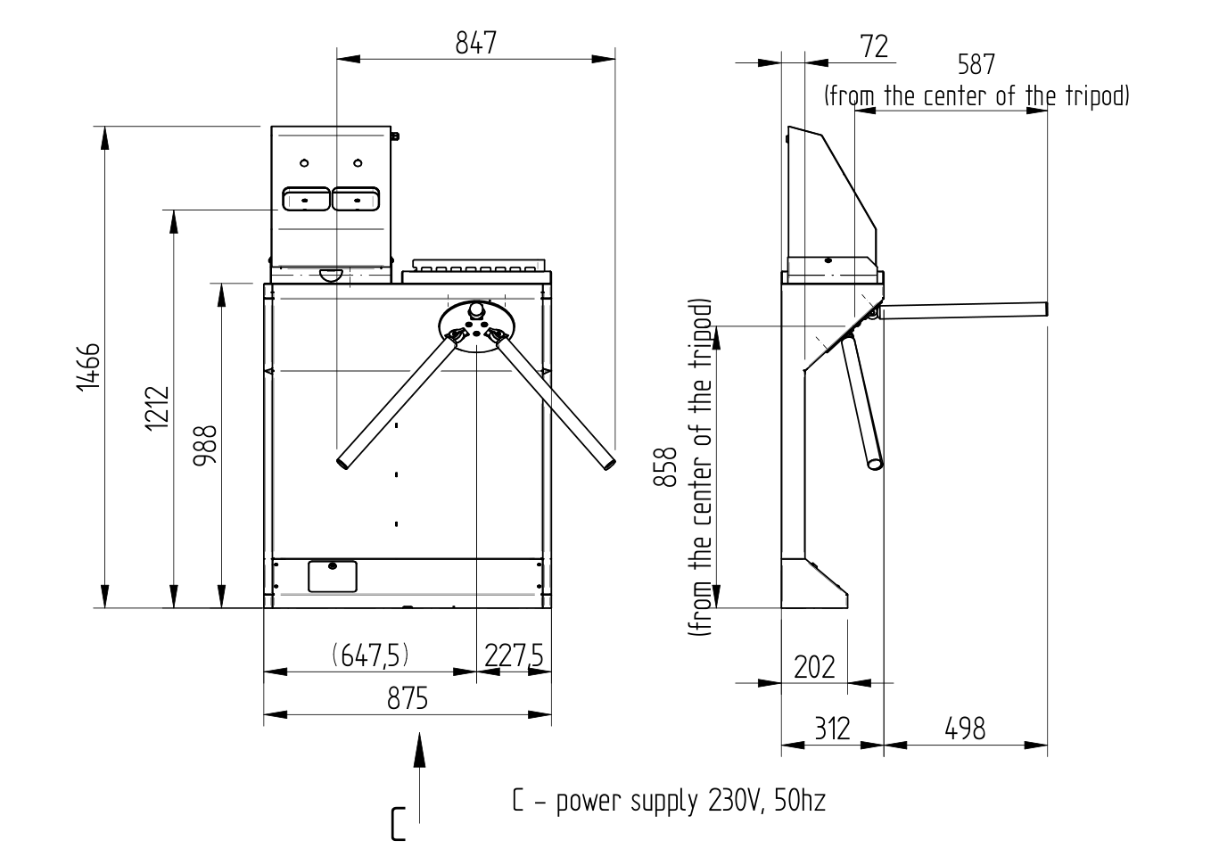
DSO 01.ADR disinfection station with automatic hand disinfection and turnstile
The DSO 01.ADR is a automatic hand disinfection unit with an integrated turnstile that ensures hygiene and restricts entry into controlled areas.
This system consists of the automatic hand disinfection unit ADR 01.3, including a canister shelf, combined with the turnstile TRM 02.S.
When entering the protected area, personnel cannot pass through without disinfecting their hands. The built-in system activates when both hands are inserted simultaneously into the interior of the device, where they are automatically sprayed with an aerosol. If the correct procedure is followed, a green indicator light turns on, the turnstile unlocks, and the person may pass through. The sensors located in both hand insertion openings monitor the proper disinfection process. If disinfection is not performed correctly (for example, if hands are withdrawn before the spray cycle is completed), passage through the turnstile is not permitted. The user must repeat the disinfection process. Only when the green indicator light turns on may the person pass through the turnstile into the workspace.
Passage in the opposite direction through the turnstile is not monitored.
The DSO 01.ADR unit is mounted on a stand and designed for free installation in either a right-hand or left-hand configuration, depending on the direction of passage.
The TRM 02 turnstile is also equipped with an automatic arm drop function. In the event of a power failure, the arm lowers to a vertical position. It returns to its original position manually (the turnstile must be powered).
The device is made of stainless steel grade AISI 304, and therefore must not be operated in chemically aggressive environments. Cleaning agents containing chlorine must not be used. Recommended cleaning agents for the product are those from WÜRTH – Metal Restorer, item no. 893 121 1, and Stainless Steel Care Spray, item no. 0893 121 – K.
The disinfection canister is not included in the delivery. The concentration of the disinfectant solution should follow the manufacturer’s instructions. Selection of a suitable disinfectant should be consulted with the disinfectant supplier. It is prohibited to use aggressive agents based on chlorine and its compounds, or products that may adversely affect the stainless-steel housing and internal plastic piping.
Complete delivery
- hand disinfection unit
- electromechanical turnstile
| maximum device capacity | approx. 10 persons per minute |
| electrical connection | 230 V, 50 Hz |
| device power input | standby 3 VA
dosing + passing through 45 VA |
| protection rating of the electrical components | IP 55 |
| recommended disinfectant | Consult the selection of a suitable disinfectant with the supplier of disinfectant products. It is prohibited to use aggressive agents based on chlorine and its compounds, as well as products that may adversely affect the stainless-steel housing and internal plastic piping. |
| weight | 104 kg |
- Bring a power supply 230 V / 50 Hz power supply using a 3 x 0.75 mm² cable (minimum), separately protected by an external single-phase circuit breaker rated at 2 A.
DSO 01.ADR.P

DSO 01.ADR.L




